手動球閥

Q41Y金屬硬密封球閥
產品簡介
News Center
新聞中心產品型號:Q41H,Q41Y
公稱通徑:DN15~DN300
公稱壓力:1.6Mpa~32.0Mpa
適用溫度:350oC~550oC~800oC
閥體材質:不銹鋼、304、316、316L、310S、2502、2205
適用介質:水、油、氣體、液體
結構形式:球形
連接方式:法蘭、對夾、螺紋、焊接
驅動方式:手動、蝸輪、電動、氣動
制造標準:國標GB、德國DIN、美國API、ANSI、ISO
應用范圍:用于石油、冶金、化工、橡膠、造紙、制藥等行業(yè)
1、流體阻力小,球閥是所有閥類中流體阻力最小的一種,即使是縮徑球閥,其流體阻力也相當小。
2、開關迅速、方便,只要閥桿轉動90°,球閥就完成了全開或全關動作,很容易實現快速啟閉。
3、球閥的啟閉只做90°轉動,故容易實現自動化控制和遠距離控制,球閥可配置氣動裝置、電動裝置、液動裝置、氣液聯(lián)動裝置或電液聯(lián)動裝置。
4、球閥通道平整光滑,不易沉積介質,可以進行管線通球。
| 設計與制造 | 結構長度 | 法蘭尺寸 | 壓力-溫度 | 試驗-檢驗 |
| GB122237 | GB12221 | GB9113 JB79 | GB9131 | GB/T13927 JB/T9092 |
| 公稱壓力NominalPressure | 1.6 | 2.5 | 4.0 |
| 強度試驗 Shell Test | 2.4 | 3.8 | 6.0 |
| 水密封試驗 Water Seal Test | 1.8 | 2.8 | 4.4 |
| 氣密封試驗 Air Seal Test | 0.4-0.7 | ||
| 閥體 Body | ZG1Cr18Ni9Ti | CF8 | CF3 | ZG1Cr18Ni12Mo2Ti | CF8M | CF3M | |
| 球體閥桿 Ball Stem | 1Cr18Ni9Ti | 304 | 304L | 1Cr18Ni12Mo2Ti | 316 | 316L | |
| 閥座 Seat | -29℃~300℃(對位聚笨 PPL) -29℃~550℃(金屬) | ||||||
| 墊片 Shim | 不銹鋼/柔性石墨Stainless Steel/flexible Graphite 齒形墊片Tooth Profile Gasket | ||||||
| 閥桿座 Stem Seat | 不銹鋼/柔性石墨 Stainless Steel/Flexible Graphite | ||||||
| 填料 Packing | 增強柔性石墨 Enhanced Flexible Graphite | ||||||
| 填料壓蓋 Gland | 1Cr18Ni9Ti | 304 | 304L | 1Cr18Ni12Mo2Ti | 316 | 316L | |
| 溫度 Temperature | -29℃~300℃(對位聚笨 PPL) -29℃~550℃(金屬硬密封) | ||||||
| 介質 Medium | 水蒸汽油品氣體 Water steam Oil goods | 硝酸類 Nitric Acid | 強氧化介質 strongey oxidable medium | 醋酸類 Acetic Acid | 尿素類Urea | ||

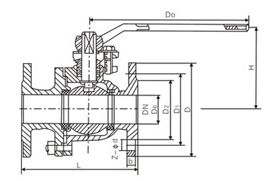
| 1.6MPa | DN | L | D | D1 | D2 | b | n-φd | H | D0 |
Q41PPL 16C 16P 16R | 15 | 130 | 95 | 65 | 45 | 14 | 4-14 | 78 | 140 |
| 20 | 140 | 105 | 75 | 55 | 14 | 4-14 | 84 | 160 | |
| 25 | 150 | 115 | 85 | 65 | 14 | 4-14 | 95 | 180 | |
| 32 | 165 | 135 | 100 | 78 | 16 | 4-18 | 150 | 250 | |
| 40 | 180 | 145 | 110 | 85 | 16 | 4-18 | 150 | 300 | |
| 50 | 200 | 160 | 125 | 100 | 18 | 4-18 | 170 | 350 | |
| 65 | 220 | 180 | 145 | 120 | 20 | 4-18 | 195 | 350 | |
| 80 | 250 | 195 | 160 | 135 | 20 | 8-18 | 215 | 400 | |
| 100 | 280 | 215 | 180 | 155 | 20 | 8-18 | 250 | 500 | |
| 125 | 320 | 245 | 210 | 185 | 22 | 8-18 | 265 | 600 | |
| 150 | 360 | 280 | 240 | 210 | 24 | 8-23 | 270 | 800 | |
| 200 | 400 | 335 | 295 | 265 | 26 | 12-23 | 330 | 1200 | |
| 2.5MPa | 15 | 130 | 95 | 65 | 45 | 16 | 4-14 | 103 | 140 |
Q41PPL 25 25P 25R | 20 | 140 | 105 | 75 | 55 | 16 | 4-14 | 112 | 160 |
| 25 | 150 | 115 | 85 | 65 | 16 | 4-14 | 123 | 180 | |
| 32 | 165 | 135 | 100 | 78 | 18 | 4-18 | 150 | 250 | |
| 40 | 180 | 145 | 110 | 85 | 18 | 4-18 | 156 | 300 | |
| 50 | 200 | 160 | 125 | 100 | 20 | 8-18 | 172 | 350 | |
| 65 | 220 | 180 | 145 | 120 | 22 | 8-18 | 197 | 350 | |
| 80 | 250 | 195 | 160 | 135 | 22 | 8-23 | 222 | 400 | |
| 100 | 280 | 230 | 190 | 160 | 24 | 8-23 | 253 | 500 | |
| 125 | 320 | 270 | 220 | 188 | 28 | 8-25 | 275 | 600 | |
| 150 | 360 | 300 | 250 | 218 | 30 | 8-25 | 286 | 800 | |
| 200 | 400 | 360 | 310 | 278 | 34 | 12-25 | 340 | 1200 |
在線留言